referencia
Épitészet, Átalakítás
D13 Pilisszentlászló
D13_Pilisszentlászló
kő-vályog parasztház felújítás
alapterület: 116 m2
építés éve: építés alatt
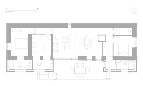
Megbízónk a Pilis hegyei közti panorámás telken álló, korábbi felújítások alkalmával többszörösen átalakított, eredetileg tornácos, háromosztatú, istállóval egybeépített parasztház jellegű kő-vályog épületet vásárolt, melybe a jelenlegi karakter megtartásával a mai kor igényeinek megfelelő, kisgyermekes családnak alkalmas otthont álmodott meg. A tervezés egyik központi eleme a hegyi panoráma és a hatalmas kert, ahol virágkötő lévén virágtermesztés fog folyni. Ehhez kapcsolódóan a terméskő pince hűvöse virágtárolásra, a kerti kút pedig öntözésre lesz alkalmas.
A tervezésnél kiemelt igény volt a meglévő épület Pilisszentlászló településképét meghatározó karakterének és külső geometriájának megtartása és a helyi erdei terméskőből épített értékes épületelemek újrafelhasználása, valamint lehetőség szerint a meglévő kő-vályog vegyesfalazat és az épület alatti boltíves terméskő pince állagvédelme és rekonstrukciója.
Az alaprajz és belső funkciók tervezése során arra törekedtünk, hogy a térkapcsolatok rendszere az évtizedes karakter által meghatározott geometriába szervesen illeszkedjen, úgy, hogy eközben a mai téri és funkcionális igényeket maradéktalanul kielégítse. Így alakult ki az az alaprajzi koncepció, amelyben a központi teraszkapcsolatos nappali-étkező tér köré szerveződtek a hálószobák, amelyek a korábbi tornác egyes tereit bevonva alakultak ki, így az épületen belüli közlekedő hossza lerövidült és az ablaktalan hátsó fal mentén vezet a hálókhoz. A panorámára néző fedett terasz és a látszó fedélszékes nappali tér közötti eredeti fal egy korábbi átalakítás miatt már elbontásra került, melyet nem építünk vissza, így a pilisi táj és a virágoskert a ház szerves részévé válik. A konyha falán meglévő eredeti nyílászárók rekonstruálva kerülnek vissza, így jelölve az eredeti ház falát. A szobákhoz kapcsolódó tornácszakaszok beépítésre kerülnek, így megoldott a hálószobák bevilágítása és utcafronti részen beépített tornácszakasszal együtt keretezik az eredeti tornác funkcióját visszaadó fedett teraszt, amely kiszélesítve elrejti az áthelyezett pincelejárót és fatárolót is.
Az építészeti-műszaki tervezés és belső térrendezés eredményeképp a parasztház újabb évtizedekkel meghosszabbítva tudja kiszolgálni és megtartani lakói jól-létét.












